Быстрый ответ: размер площадки для пляжного волейбола составляет 16 на 8 метров.
Изменение размеров площадки для пляжного волейбола произошло в 2001 году.
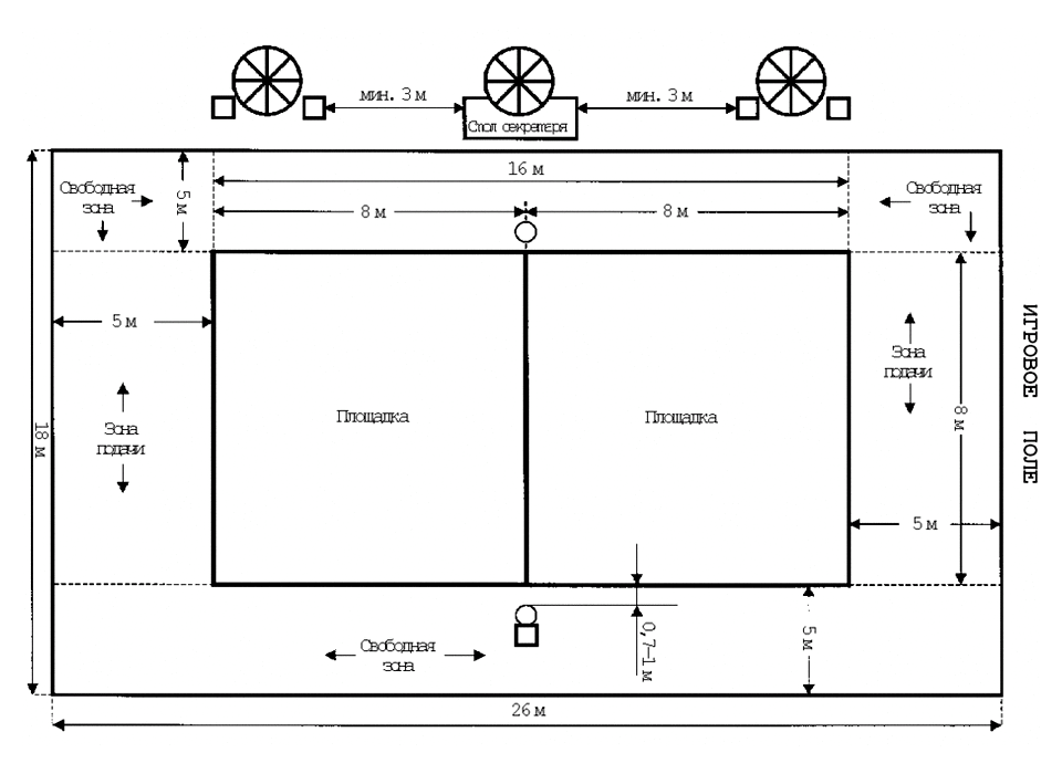
Изначально корт был размеров 9 х 18 м и уменьшился до размеров 8 х 16 м для международных соревнований. В имперской системе измерений - примерно 26,2 х 52,5 фута.

Это изменение было внесено Международной федерацией волейбола (FIVB) для соответствия формату игры с двумя игроками, что сделало площадку меньше крытых площадок и лучше подходило для игры на песке.
В официальных правилах пляжного волейбола предусмотрены обязательные пространства со всех сторон корта размером около 5 метров.
Размер площадки классического волейбола: 9 на 18 метров
Размер площадки пляжного волейбола: 8 на 16 метров